NOW LOADING...

ザ・パークハウス西新宿タワー60

■タワーマンションから望むパノラマビュー
・全室クロス張替
・オールハウスクリーニング予定
・プライバシー重視の内廊下設計/二重床・二重天井構造
・安心のオートロックシステム
・充実の共用施設
  • ザ・パークハウス西新宿タワー60
  • ザ・パークハウス西新宿タワー60
  • ザ・パークハウス西新宿タワー60
  • ザ・パークハウス西新宿タワー60
価格 -
所在地 東京都新宿区西新宿5丁目
交通 都営大江戸線「西新宿五丁目駅」  徒歩7分
東京メトロ丸の内線「西新宿駅」  徒歩9分
東京メトロ丸の内線「中野坂上駅」  徒歩10分
建物構造 鉄筋コンクリート造 60階建
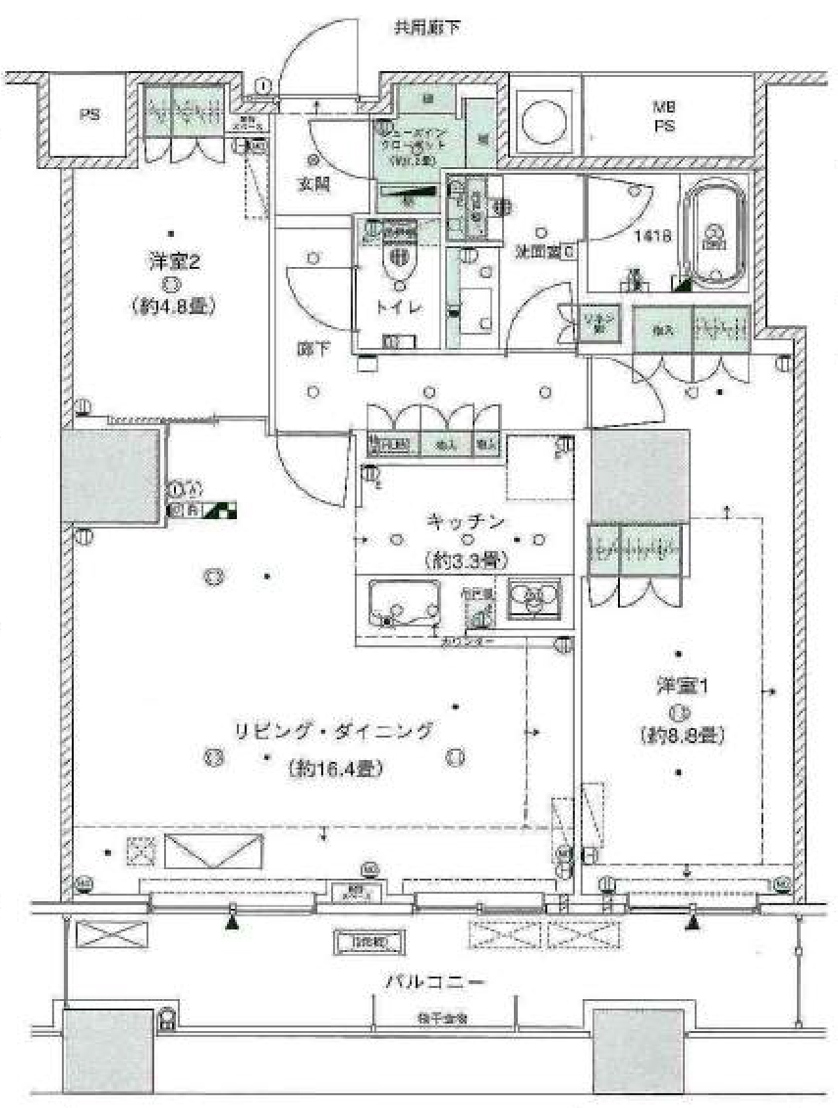
専有面積 76.46m2

ザ・パークハウス西新宿タワー60の詳細

価格 - 物件種別 マンション
所在地 東京都新宿区西新宿5丁目 最寄り駅 都営大江戸線「西新宿五丁目駅」  徒歩7分
東京メトロ丸の内線「西新宿駅」  徒歩9分
東京メトロ丸の内線「中野坂上駅」  徒歩10分
建物構造 鉄筋コンクリート造 60階建 築年月 2017年8月 築
専有面積 76.46m2 バルコニー面積 12.25m2
土地権利 所有権 用途地域 商業
電気 - 水道 -
ガス - 下水 -
状況 - 引渡日 - 
管理費 22970円 修繕積立費 13760円
総戸数 954戸 施工会社 株式会社フジタ
管理会社 - 管理人 -
管理形態 - 管理組合 -
所在階数 28階 間取 2LDK
近隣学校

ザ・パークハウス西新宿タワー60のその他設備

駐車場 - 備考 -
駐輪場 - 備考 -
バイク置き場 - 備考 -

その他備考

・追焚機能
・浴室乾燥機
・温水洗浄便座
・IHコンロ
・ディスポーザー
・食器洗浄乾燥機、浄水器
・クローゼット、シューズIC
・高速インターネット
・全個室フローリング
・床暖房
・24時間セキュリティ
・オートロック、防犯カメラ、モニタ付オートロック、TVモニター付きインターホン
・宅配BOX、フロントサービス

お問い合わせ Contact

当社へのお問い合わせは
下記より承っております。

受付時間
 11:00~18:00

※火曜日、水曜日を除く